Elumaja "WH102"
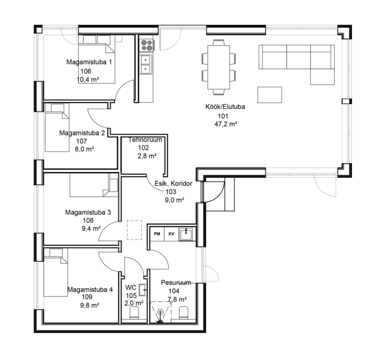
Elumaja "WH102" on ühekorruseline valgusküllane ühepereelamu. Maja L kujuline põhjaplaan loob võimaluse rajada mõnus siseõu ja terrass.
Avatud planeeringuga elutuba-köök on kõrge katuslaega. Ruumis on kolmes küljes avatäited. Võimalik paigaldada nii lükand-, voldik-, terrassiuksed või aknad.
Majas on 4 magamistuba. Soovi korral saab kahe toa vahelise seina ära jätta ja nii ruumi pindala suurendada.
Pakume mitut erinevat plaanilahendust, nii saunaga kui ilma.
| Kasulik pind (m2) | 107,5 |
| Kasulik pind I korrusel | 107,5 |
| Magamistubade arv | 4 |
Sul on küsimusi
või soovid pakkumist?




